Council Landscape Plan
LANDSCAPE PLANS FOR COUNCIL APPROVAL. Town Planning Landscape Plans
If you are renovating an existing property, subdividing, building dual occupancy or mulit unit developments Local City Councils may request for a Landscape plan with a set of conditions relevant to the site, council future plans, Council site overlays and prepared by a suitably qualified person which will show some or all or more of the following items.
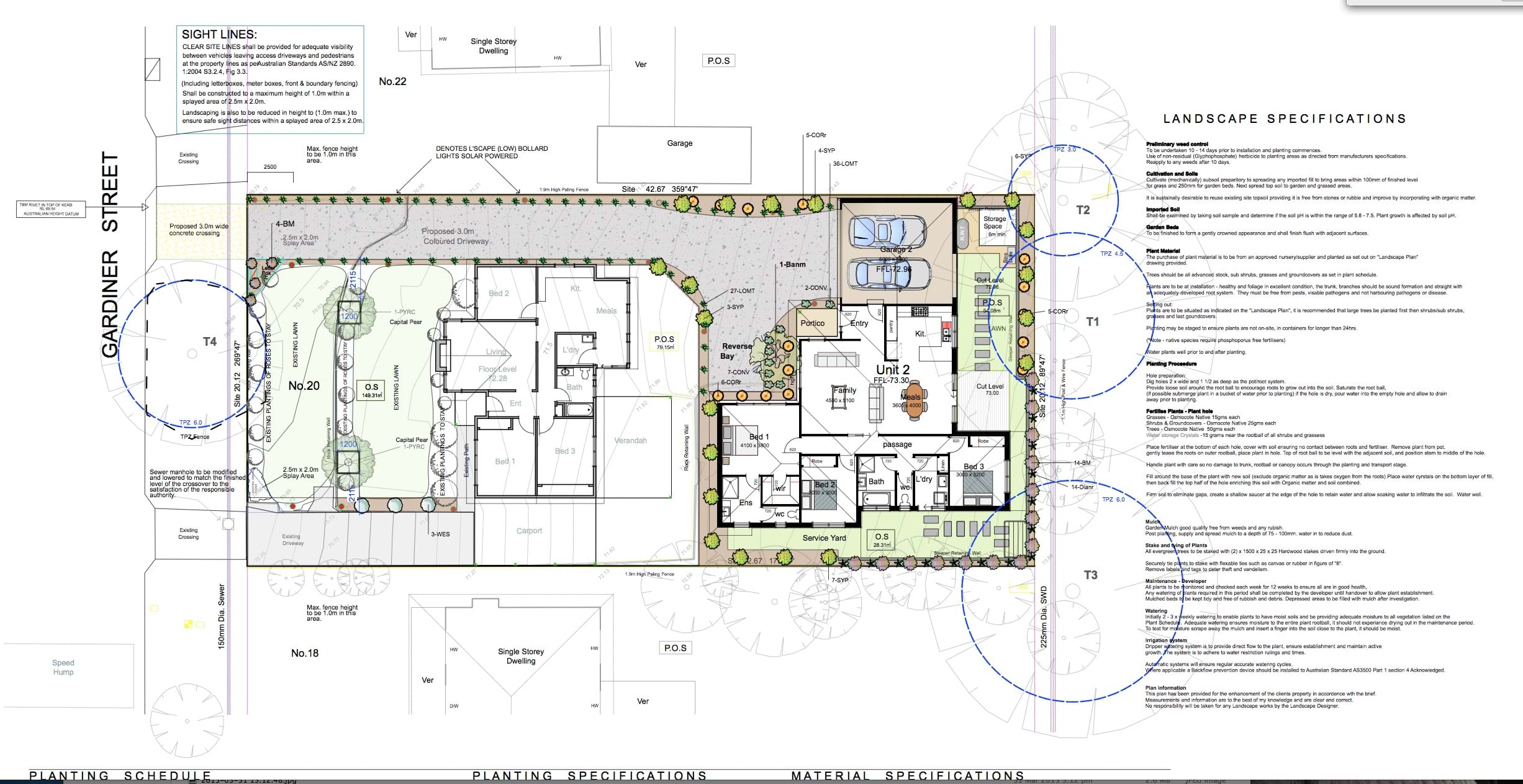
Landscape Plan to show
- A Survey (Including botanical names, height and width) of all existing vegetation to be retained and /or removed
- Show existing buildings and trees (Including botanical names, height and width on neighbouring properties within three meters of the boundary
- Details of surface finishes of pathways and driveways
- Details and location of all existing and proposed services including above and below ground lines
- A planting schedule of all proposed trees, shrubs and ground covers including botanical names, pot sizes, sizes at maturity and quantities of each plant
- Landscaping and planting with all open areas of the site.
- Three (3) Additional medium canopy trees to be shown in the front setback of unit one
- One (1) additional small canopy tree located in the rear SPOS for each unit.
- All (TPZ) tree protection zones for trees to be retained on the subject site and adjoining properties must be shown accurately on the landscape plan.
- Bin store
- Storage spaces
- Rainwater tanks
- Clothesline
- Fence detail
Landscape plans should reflect the streetscape character, ensure retention of canopy trees within neighbourhoods and improve the visual amenity of properties to reduce the impact of developments
We have been preparing landscape permit plans for many years that satisfy councils in Melbourne and country Victoria.
Send us your project information over email to jodiehay@gmail.com so we can provide you with a quotation for Landscape Design
- pdf or dwg Site plan with Ground floor plan showing doors and windows
- Site survey showing existing buildings and vegetation with levels
- Arborist report (if available)
- Council permit
- Bushfire management Plan
- Council Permit Conditions
So if you require a quotation or wish to talk further about your project hit the Online enquiry tab, or phone 0418 184 250 and speak to us





